

Learn More About Our
Campaign Projects
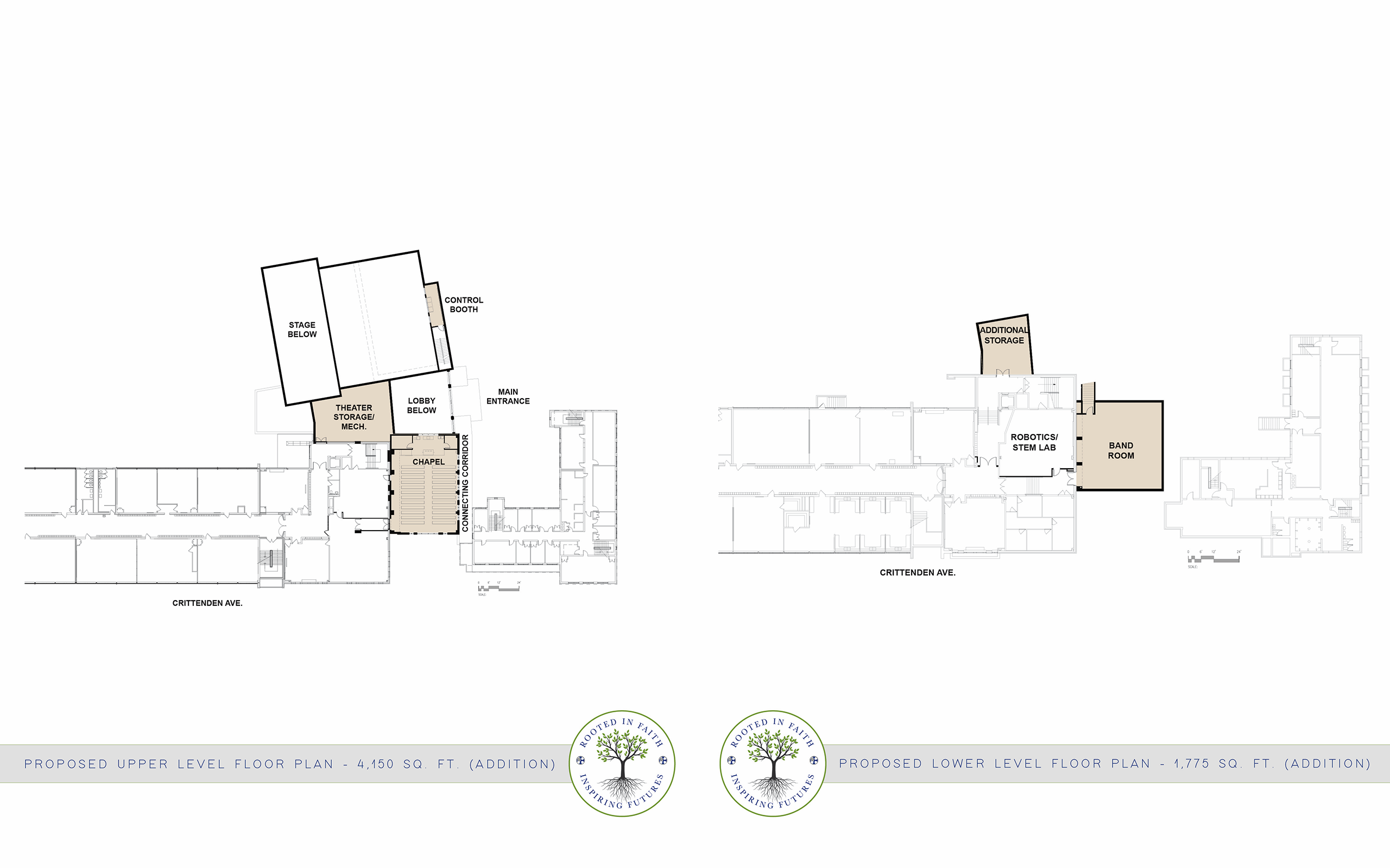
The 500-seat Performing Arts Center is more than meets the eye. It will be, first and foremost, a state-of-the-art high school theater, concert hall, and art gallery.
The chapel will be located in the heart of the school directly adjacent to the new Performing Arts Center.
The Student Life Center will provide students with a comfortable space to socialize and “study” before and after school and will also accommodate student organization meetings.
Acoustically superior and soundproof to the surrounding classrooms, the new space is almost 50% larger than the current room, providing for the needs of a growing music program.
The three new classrooms we gain as a by-product of the new spaces being constructed allow us to keep pace with growing enrollment.
Campaign Leadership
This is a strategic moment in time for Bishop Chatard High School as we stand at the threshold of an even brighter future in our ability to meet the needs of our students. The planning and organization for a successful campaign is in place. Broad-based support for the school has been voiced. It’s time to act!
Operational Chairs
Aaron and Jennifer Dixon
Mike ’03 and Carly ’05 Dury
Mike and Heather McGinley
Pat ’90 and Deanna Murphy
Rob and Julie ’88 Pruitt
Honorary Chairs
Dan and Betsy Brunette
Rob and Libby ’78 Doyle
Zack ’09 and Morgan Martin
Msgr. Joseph F. Schaedel
Cabinet Members
Joe and Jenny Annee
Mike and Amy Borchers
Marty ’02 and Lauren ’02 Brown
Peter and Sarah Bustamante
Kip and Nicole Chase
Brad and Eileen ’90 Countryman
Jason ’87 and Kim Eckerle
Peter ’85 and Jenny Forsee
Nate and Kelly Hill
Kurt ’86 and Danica Hostettler
Russ ’89 and Kelli Lawrence
Pat and Ginny Maher
Mick ’90 and Laura Mates
Rich and Mary McGillicuddy
Spero Pulos and Julie ’83 McGinnis-Pulos
Dave and Anne Monahan
Scott and Cathy Nickerson
Kevin and Elizabeth Sowinski
Jim and Kelly ’91 Stehlik
Greg ’88 and Carol Stephens
Photo Gallery